The Energise Project builds on the transformation of the building already achieved in recent years to:
- energise the building with new purpose and renewal
- energise wellbeing personally, economically and socially
- energise faith and mission
Bridgwater Baptist Church has been part of the community since the early 1600s. The Energise Project is the latest part of that continuing vision sharing the love of Jesus. Developing our church slogan to be “A Christian Heart in the Heart of the community”.
“Energise project aims to renew our premises by 2021/2 creating a safe, welcoming space to facilitate strengthening community and promote social and personal wellbeing”
June 2023 Final Update
View our video on Facebook showing the before during and after of the Energise Project…
March 2023 Update
We are thrilled with the progress that has been made with Energise. We are moving towards the last few weeks of building works for Energise. The top floor offices are nearing completion and it has been a major transformation to have the skylights restored bringing light into the centre of the new Enterprise Hub and the top corridor.
The Cellar is almost ready for fitting the kitchen and coffee bar, final plastering and decorating and the new lift has been fitted this week (14th March). The middle floor is being well used and it will be great to have the second lift installed in next couple of weeks which will mean the final finishing off can be completed in this section. The second lift needs to be fitted before flooring is fitted and last bits of decorating completed.
Finances are very tight but the contractors have been fantastic and worked hard to keep the work within budget as much as possible. We are now looking ahead to our Open Day and dedication celebration. Come see and celebrate with us if you can make it on 13th May.
October 2022 Update
Energise is now being realised as the main contractor has signed contracts and work steps up a gear. Due to previous contractor pulling out of the project we took on the first floor aspect of the project ourselves in June – July 2022, while seeking a new contractor, and are really pleased to have completed this. The new contractor has just finished remodelling the ground floor toilets in anticipation of starting insertion of lift shafts. As we enter the main works period we do apologise that the building will not look its best for the next few months as we are constantly battling the dust!
The car park is mostly out of use with contractors vehicles, deliveries and storage of materials. The building is still open throughout the construction stage of Energise but entry may be through a different entrance than normal as will be indicated. Please keep to the access indicated for health and safety reasons.
Financially we have raised £675,000 which we anticipate, with ongoing fundraising, will complete the project as costs have increased. The project timeline has by default moved slightly however the new completion date just slips into 2023 (by 7th April). We do give thanks for God’s provision to this point and can begin to start planning the ministry and outreach the renewed premises will enable. We continue to really value prayers and gifts in the ongoing vision of the Energise Project.
March 2022 Update
We are so pleased to announce that we have now raised 100% of the full initial target to finance Energise (£575,000) and are now in process of updating the tenders for the project knowing that costs have increased over the last year. So we continue to raise funds towards the project but are now at the point of beginning to prepare for the works to commence in the next few weeks. Huge thanks to all who have contributed and we are excited to be moving towards realising the vision.
October 2021 Update
We have now raised over 75% of costs for the Energise Project. Through further grants awarded, individual gifts and events. Local fundraising has included a cream tea, abseil and sponsored walk. Further activities are ongoing and as well as raising funds have been a great way to get together and deepen our life together. Further down this page are ways you can help with Energise.
April 2021 Update
We have now raised almost 50% of costs for the Energise Project. This has come from individual gifts, Fairfield Charitable Trust, HPC Community Fund, Bernard Sunley Foundation, Beatrice Laing Trust, All Churches Trust. We would love it if you would be part of helping us raise the remaining 50% and this page outlines way you can be involved.
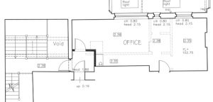
Plans
The plans focus on three parts of the building.
The Cellar which is planned to become a café/coffee bar space with possible uses including: a social base for Hinkley workers, a Wellbeing Café, Drop in venue for advice and as a venue for youth work.
Middle floor where present small spaces will be combined to provide a new home for Street Pastors and Church office.
Top Floor providing community space for small businesses and start up initiatives with office space. As well as serving the needs of the town would be income generating towards the upkeep of the building, helping long term sustainability and also go towards employing a part time project worker to help oversee some of the mission projects suggested for the cellar.
Help
The Energise Project is a huge step of faith for us as a church and we need help in three main ways:
Prayer: To pray regularly and if possible at our prayer time for the project Wednesdays 12.00noon at church.
Practical: Many skills are needed on the Action Group as we continue to work hard in moving Energise forward.
Finance: As well as seeking funding through grants we really need to raise funds from within the congregation and contacts of the church.
One Off Gift
A simple gift is very welcome. However large or small it helps us move forward.
You can help make your gift even more fruitful if you pay tax by helping us reclaim tax on your gift through Gift Aid.
e.g. If 10 people gave £500 each we would raise at least £5000.
Regular Donation
Regular donations help us to plan ahead.
e.g. If 10 people gave £30 a month for 4 years we would raise £14,400.
Again if you are a taxpayer you can allow us to reclaim tax making your donation even more useful. Standing order is the best way to make regular donations.
Interest Free Loan
If you can loan the church money towards the project it can often make a huge difference.
The terms of repayment can vary and if this may be a way you can help do chat to Martin.
We may also be able to access loans from denominational sources.
Every gift makes a difference. You can see here three main ways to be involved.
Donations to the “Bridgwater Baptist Church Energise Project” account details are:
NatWest Bank
Sort Code: 60 03 27
Account number: 87185105
For further details and to give please contact our Treasurer, Annette Griffiths
Tel: 01278 425356
Email: treasurer@bridgwaterbaptist.co.uk
If you have any questions or would like further information, please contact us.















